FF - Spolkový prostor Úl

Stavba ze 70. let je zanešená nánosy vrstev elektroinstalací, mříží, plynových vedení, izolace, lamp, klimatizace a přetřených plechů. Na toto vrstvení jsme však nenahlíželi jako na špínu potřebnou vyčistit. Viděli jsme zavěšené girlandy, změkčení ostrých hrana, vrstvu promítaných stínů na zdi, kultivovanou vrásku než jizvy.

Rozhodli jsme je spíše zvýraznit než skrýt. S tím souvisí i kontrast s tmavým odstínem nátěru zdí. Tmavá barva je též formou diferenciace od světlých odstínů okolních budov, podobně jako výška celého objektu v porovnání se zdejší zástavbou.

Pod novým vedením budova nemá být pouze kavárnou, ale má sloužit i kultuře, práci, tvorbě a zábavě. Jednou z priorit bylo zprovoznit dvůr. Kdysi prostor pro zásobování se měl stát veřejným místem neškodných nekalostí.

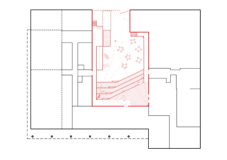
Původně příjezdová cesta mezi borovicemi navazuje na předprostor s kontejnerem, jenž organizátoři používají jako bar či pokladnu. Hlavní prostor ve středu dvora je dějištěm koncertů, divadla, kina a podobných událostí či jako pouhá zahrádka pro kavárnu ve východním křídle budovy. S tím souvisí forma dřevěného schodiště/hlediště.

Čtveřice sloupů delimituje ústředí celého místa a nastiňuje hierarchii mezi jednotlivými prostory a komunikacemi. Dřevěná konstrukce totiž spojuje betonové ochozy a rampu, dává tak vzniku nezávislé trase podél kavárny, baru, výdejního okénka, až k jednotlivým ateliérům, možnému co-workingu a divadlu. Celý prostor je pak krytý sérií stínidel, lamp, promítacích pláten a jiných prvků vyvěšených ze vztyčených sloupů.

úl - půdorys
úl - vizualizace 1
úl - vizualizace 2